• 工程實績
  • 現行條文
  • 施做工法
  • 聯絡我們

隆耀實業有限公司

  • 工程實績
  • 現行條文
  • 施做工法
  • 聯絡我們
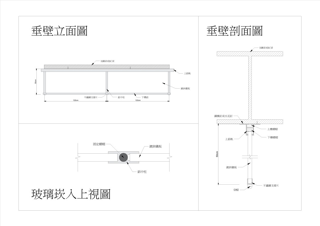
首頁施做工法H鋼(鍍鋅鐵板)

H鋼(鍍鋅鐵板)

發布日期:17 Aug 2024

企業信箱/合作

[email protected]

營業據點

702台南市南區興南街55巷41號

聯絡我們

曹老闆電話: 0919593566
公司電話: 06-2962849
公司傳真: 06-2628322
統一編號: 24913131

版權所有 © 2024隆耀實業有限公司